首页导航 | 加入收藏 | 设为主页
欢迎您来到无锡市华锦电力设备修造有限公司的企业网
     > Here is the contents of our home page navigation forum, to provide you with convenient browsing. Thank you! ...
制粉系列
除灰系列
上煤系列
 

无锡市华锦电力设备修造有限公司
地 址:无锡市滨湖区雪浪方庙工业园区
电 话:0510-85187068
传 真:0510-85183818
邮 编:214125
Http://www.hjdlsb.com
E-mail:sales@hjdlsb.com

 
 
双进双出煤粉分离器
目前国内制粉系统采用的BBD系列双进双出钢球磨煤机,磨煤机的每端出口设计一台双锥型分离器,磨煤机的两端对称布置,内装可调叶片(径向布置),可以根据要求调节煤粉细度。双进双出钢球磨煤机正压直吹式制粉系统在整个负荷范围内均能达到较高的煤粉细度,同时双进双出钢球磨煤机正压直吹式制粉系统同中速磨煤机正压直吹式制粉系统相比,其低负荷稳燃性能更好。双进双出磨煤机对不同煤种有很强的适应性、可用率和灵活性也很高,为此近几年得到了较为广泛的应用。

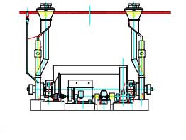
粒度为0~30mm的原煤,通过速度自动控制的给煤机送至料斗落下,经过混料箱并在此得到旁路风的预干燥,通过落煤管而到达位于中空轴心部的螺旋输送装置中。输送装置随磨机筒体做旋转运动,使原煤通过中空轴进入磨机筒体内。磨机的筒体内按照工艺流程的要求,装有一定量的钢球,在磨机筒体旋转过程中,由于钢球对原煤的冲砸和相互摩擦,煤块逐渐被磨制成煤粉。通过一次热风由中空轴内的中空管进入磨机,使原煤和煤粉进一步得到干燥,并将煤粉从原煤进入口的相反方向吹出磨机筒体,带有煤粉的一次热风在磨机出口再一次与旁路风混合,通过煤粉管路进入磨机上方的分离器。分离器装有位置可调的叶片,通过调整叶片的位置,可以实现出口煤粉细度的调节和控制。合格的煤粉从分离器上方出口直接送往锅炉燃烧器,而不合格的煤粉则依靠惯性和重力的作用,通过回煤管返回磨机,再次进行研磨。双进双出钢球磨煤机机器外形图如图1所示。
 

二、双进双出钢球磨煤机径向型煤粉分离器存在的主要问题
目前双进双出磨煤机所配套的煤粉分离器多数采用国外的径向型分离技术,自行消化由国内各磨煤机生产厂家配套,由于消化吸收的程度不一样,不免出现各种问题。径向分离器分离效果差。此粗粉分离器属于径向型,容积利用率低,阻力大,其性能本身比轴向型粗粉分离器要差,均匀性差、循环倍率高也是其固有缺点,《电站磨煤机及制粉系统选型导则DLT466-2004》中以不建议采用,应选用性能较好的轴向型粗粉分离器。
分离器回粉机构存在严重缺陷,容易造成气流短路或回粉堵塞现象。分离器内部有回粉时,帘板易被分离器入口的气流吹起,主气流将直接冲刷帘板内侧,分离器进口的部分含尘气流直接通过被吹起帘板下部的空间进入内椎体,未经分离器分选的煤粉直接进入分离器出口一次风管道中,增加了煤粉中的粗大颗粒份额,大大降低了煤粉的均匀性,使得燃烧效率下降。同时短路气流也影响到内锥体内的分离器状态,将部分已经分离下来的粗颗粒又吹到粗粉分离器出口,也导致煤粉细度变粗,均匀性变差。还存在帘板卡死、回粉堵塞的现象,也会造成煤粉均匀性变差。
在实际运行中,原煤中混有的秸秆、布条、胶皮、铁丝、编织袋等杂物在经过排列紧密的分离器折向挡板时缠绕在挡板叶片上,且上述杂物还经常堵塞在分离器的回粉管锁气器上,造成分离器分离效果变差甚至失去分离能力,引发以下情形:

  1. 运行中的炉渣有明显的大碳粒。
  2. 锅炉飞灰含碳量增加,降低了锅炉的运行经济性。
  3. 由于分离器堵塞,降低了磨煤机的出力,经常出现带不到负荷曲线的情况。
  4. 大颗粒更易沉积在一次风管的水平管段,造成燃烧器出力不均,引起高温管材的局部超温。
  5. 因为需要手动清理分离器上附着的杂物,极大增加了检修人员的工作量。
  6. 为了清理杂物,只能轮流停止磨煤机,做相关安全措施,增大了运行人员的工作量。
  7. 增加了积粉爆炸造成人员伤亡的可能性。
  8. 限于负荷要求、运行方式要求和人员工作强度而不能做到磨煤机分离器的应清必清,增加了原煤的消耗。
  9. 由于磨煤机达不到满出力,必须早开磨、晚停磨,有时负荷曲线长期低负荷时也要保持6台磨运行,造成厂用电消耗和磨煤机钢耗的增加。

机组投产以来,双进双出磨煤机分离器堵塞问题一直是严重影响机组安全运行的关键问题,目前每天都要停磨煤机清理分离器,因此改造磨煤机分离器势在必行,是机组安全经济运行的关键。
三、对原双进双出煤粉分离器改造
根据以往对该型式分离器的了解,一般存在煤粉均匀性差、循环倍率高等缺点,煤粉细度无法调节,煤粉均匀性差,煤粉中粗大颗粒多,影响煤粉的燃烧、燃尽,降低了锅炉燃烧效率。循环倍率高容易导致制粉系统出力不足等问题。我们多次与试验所和制粉专家共同探讨解决以上五项缺点。在本体高度及磨损区域、锥体角度、回粉管堵塞、锁气器的不动作多次优化,形成了现在的双进双出磨煤机轴向型双挡板煤粉分离器,申请并通过了各项知识产权。
3.1 双进双出磨煤机轴向型双挡板煤粉分离器技术特点
轴向型双挡板煤粉分离器针对原来的轴向型和径向型粗粉分离器煤粉均匀性较差的问题,在轴向Ⅱ型粗粉分离器入口管道上增加二次携带导流器,合理分配气流的行程,增长分离距离,同时通过二次携带尽量减小回粉中的合格煤粉,提高出力,增强了分离效果,改善了煤粉均匀性。
轴向可调节挡板,可进行煤粉细度的细调。在不增加系统阻力的前提下,提高了分离器的分离效果,了煤粉细度的均匀性。有利于煤粉在炉内的燃烧,提高煤粉的利用率,从而提高锅炉的经济效益。该煤粉分离器适用于各种煤粉细度和煤质,煤粉细度可调至4-6%。其技术特点主要可概述为:
(1)将粗粉分离器进口管加装二次携带导流器,改善了一次分离区的结构和气流形态,改善重力分离的效果,二次携带能力增加,分离路径增长,同时降低分离器的阻力。
(2)二次携带轴向型双挡板煤粉分离器具有较好的“防堵”功能。

  1. 由于分离器容积强度的增加,分离路径增长;
  2. 轴向型挡板与径向型挡板相比结构完全改变,杂物由于重力作用无法在挡板处停留,减少堵塞的机率;
  3. 加之轴向型挡板通流面积增加,杂物部分通过挡板被吹入炉膛,堵塞的可能性大大减少;
  4. 加大回粉管直径,增加流通及回粉能力;
  5. 分离器内椎体改为全封闭式内筒,不再出现短路及堵塞现象。

(3)内部无任何积分死角,彻底杜绝内锥堵粉的可能性。
(4)一次风管风粉分布均匀性提高。由于流场分布均匀,使得分离器后进入一次风管道风粉均匀性得到改善,设备阻力有所降低。
(5)具有较好的细度调节特性。煤粉细度调节范围大,轴向型挡板调节性能良好,调节特性呈线性,调节挡板开大时煤粉细度变大,反之则减小。可以根据不同的煤种调整煤粉细度,对于燃烧性能较差的煤,煤粉细度能有效的控制在所需的煤粉细度内,制粉系统出力不降低。
(6)在回粉口上安装外置锁气器,锁气严密、不串气、气流不短路,在锁气器上安装快开门,使锁气器内垃圾清理方便、安全。分离器的人孔门为快开门,开闭方便。
(7)提高机组运行的安全性和经济性,减少检修人员的工作强度。
3.2 轴向型双挡板煤粉分离器结构特点
轴向型双挡板煤粉分离器是适用于火力发电厂制粉系统中的直吹式双进双出钢球磨的锅炉设备,属于气固两相流中的分离装置。
轴向型双挡板煤粉分离器结构包括煤粉分配器、轴向可调节挡板(双级)、外圆柱体、内圆柱体、内锥体、外锥体、二次携带导流器、回粉桶及回粉锁气装置。煤粉分配器安装在外圆柱体上,外圆柱体与外锥体连接,在外圆柱体内设置内圆柱体,外锥体内设置内锥体;在外锥体下端连接回粉桶,回粉桶的回粉管连接回粉锁气装置,外圆柱体与内圆柱体间设置煤粉分离调节挡板。
煤粉分离轴向调节挡板置于分离器外锥体与内锥体间,由内轴座、轴套、内端轴、外端轴、外轴座、压盖、密封盖、螺帽及挡板组成。挡板前端设置有内轴座,内轴座内装有内端轴,内端轴上套有轴套;挡扳后端设置有外端轴,外端轴安装在外轴座内,外端轴端装有压盖及密封盖,并且用螺帽并紧。具有较好的细度调节功能、防堵功能
在煤粉分离轴向调节挡板附近设有快开人孔门、快装清理检查孔等。

3.3改造后效果:
轴向型双挡板煤粉分离器在正压直吹式双进双出制粉系统中能很好的实现煤粉细度的线性调整,制粉系统能适应各种煤质的变化,为燃烧系统提供可靠的,有利于锅炉燃烧的稳定性和经济性。
3.3.1、对原粗粉分离器改造后,煤粉细度得到有效控制及调节,根据不同的煤质,R90可以在5-25%之间可调,煤粉均匀性提高。可降低飞灰可燃物含量,相应可提高锅炉效率,经济效益显著,对电厂节能降耗及减排等大有益处。
3.3.2、二次携带轴向型双挡板煤粉分离器,具有良好的防堵塞功能,粗粉本体内杂物基本不会堵塞挡板,不需停磨经常清理,大大减轻设备的维护工作量,减少磨煤机被迫停机的次数。
3.3.3、在回粉口上安装锁气器,锁气严密、不串气,气流不短路,在锁气器上安装快开门,使锁气器内垃圾清理方便、安全。
3.3.4、二次携带轴向型双挡板煤粉分离器,通过重新设计计算,采用二次携带技术、轴向挡板调节装置,气流分布更为合理,制粉系统阻力有所降低,煤粉细度大幅度降低的情况下可制粉系统出力不受影响,制粉单耗变化不大甚至还略有下降(同种煤质情况下)。

 

"
目前国内制粉系统采用的BBD系列双进双出钢球磨煤机,磨煤机的每端出口设计一台双锥型分离器,磨煤机的两端对称布置,内装可调叶片(径向布置),可以根据要求调节煤粉细度。双进双出钢球磨煤机正压直吹式制粉系统在整个负荷范围内均能达到较高的煤粉细度,同时双进双出钢球磨煤机正压直吹式制粉系统同中速磨煤机正压直吹式制粉系统相比,其低负荷稳燃性能更好。双进双出磨煤机对不同煤种有很强的适应性、可用率和灵活性也很高,为此近几年得到了较为广泛的应用。

粒度为0~30mm的原煤,通过速度自动控制的给煤机送至料斗落下,经过混料箱并在此得到旁路风的预干燥,通过落煤管而到达位于中空轴心部的螺旋输送装置中。输送装置随磨机筒体做旋转运动,使原煤通过中空轴进入磨机筒体内。磨机的筒体内按照工艺流程的要求,装有一定量的钢球,在磨机筒体旋转过程中,由于钢球对原煤的冲砸和相互摩擦,煤块逐渐被磨制成煤粉。通过一次热风由中空轴内的中空管进入磨机,使原煤和煤粉进一步得到干燥,并将煤粉从原煤进入口的相反方向吹出磨机筒体,带有煤粉的一次热风在磨机出口再一次与旁路风混合,通过煤粉管路进入磨机上方的分离器。分离器装有位置可调的叶片,通过调整叶片的位置,可以实现出口煤粉细度的调节和控制。合格的煤粉从分离器上方出口直接送往锅炉燃烧器,而不合格的煤粉则依靠惯性和重力的作用,通过回煤管返回磨机,再次进行研磨。双进双出钢球磨煤机机器外形图如图1所示。
 

二、双进双出钢球磨煤机径向型煤粉分离器存在的主要问题
目前双进双出磨煤机所配套的煤粉分离器多数采用国外的径向型分离技术,自行消化由国内各磨煤机生产厂家配套,由于消化吸收的程度不一样,不免出现各种问题。径向分离器分离效果差。此粗粉分离器属于径向型,容积利用率低,阻力大,其性能本身比轴向型粗粉分离器要差,均匀性差、循环倍率高也是其固有缺点,《电站磨煤机及制粉系统选型导则DLT466-2004》中以不建议采用,应选用性能较好的轴向型粗粉分离器。
分离器回粉机构存在严重缺陷,容易造成气流短路或回粉堵塞现象。分离器内部有回粉时,帘板易被分离器入口的气流吹起,主气流将直接冲刷帘板内侧,分离器进口的部分含尘气流直接通过被吹起帘板下部的空间进入内椎体,未经分离器分选的煤粉直接进入分离器出口一次风管道中,增加了煤粉中的粗大颗粒份额,大大降低了煤粉的均匀性,使得燃烧效率下降。同时短路气流也影响到内锥体内的分离器状态,将部分已经分离下来的粗颗粒又吹到粗粉分离器出口,也导致煤粉细度变粗,均匀性变差。还存在帘板卡死、回粉堵塞的现象,也会造成煤粉均匀性变差。
在实际运行中,原煤中混有的秸秆、布条、胶皮、铁丝、编织袋等杂物在经过排列紧密的分离器折向挡板时缠绕在挡板叶片上,且上述杂物还经常堵塞在分离器的回粉管锁气器上,造成分离器分离效果变差甚至失去分离能力,引发以下情形:

  1. 运行中的炉渣有明显的大碳粒。
  2. 锅炉飞灰含碳量增加,降低了锅炉的运行经济性。
  3. 由于分离器堵塞,降低了磨煤机的出力,经常出现带不到负荷曲线的情况。
  4. 大颗粒更易沉积在一次风管的水平管段,造成燃烧器出力不均,引起高温管材的局部超温。
  5. 因为需要手动清理分离器上附着的杂物,极大增加了检修人员的工作量。
  6. 为了清理杂物,只能轮流停止磨煤机,做相关安全措施,增大了运行人员的工作量。
  7. 增加了积粉爆炸造成人员伤亡的可能性。
  8. 限于负荷要求、运行方式要求和人员工作强度而不能做到磨煤机分离器的应清必清,增加了原煤的消耗。
  9. 由于磨煤机达不到满出力,必须早开磨、晚停磨,有时负荷曲线长期低负荷时也要保持6台磨运行,造成厂用电消耗和磨煤机钢耗的增加。

机组投产以来,双进双出磨煤机分离器堵塞问题一直是严重影响机组安全运行的关键问题,目前每天都要停磨煤机清理分离器,因此改造磨煤机分离器势在必行,是机组安全经济运行的关键。
三、对原双进双出煤粉分离器改造
根据以往对该型式分离器的了解,一般存在煤粉均匀性差、循环倍率高等缺点,煤粉细度无法调节,煤粉均匀性差,煤粉中粗大颗粒多,影响煤粉的燃烧、燃尽,降低了锅炉燃烧效率。循环倍率高容易导致制粉系统出力不足等问题。我们多次与试验所和制粉专家共同探讨解决以上五项缺点。在本体高度及磨损区域、锥体角度、回粉管堵塞、锁气器的不动作多次优化,形成了现在的双进双出磨煤机轴向型双挡板煤粉分离器,申请并通过了各项知识产权。
3.1 双进双出磨煤机轴向型双挡板煤粉分离器技术特点
轴向型双挡板煤粉分离器针对原来的轴向型和径向型粗粉分离器煤粉均匀性较差的问题,在轴向Ⅱ型粗粉分离器入口管道上增加二次携带导流器,合理分配气流的行程,增长分离距离,同时通过二次携带尽量减小回粉中的合格煤粉,提高出力,增强了分离效果,改善了煤粉均匀性。
轴向可调节挡板,可进行煤粉细度的细调。在不增加系统阻力的前提下,提高了分离器的分离效果,了煤粉细度的均匀性。有利于煤粉在炉内的燃烧,提高煤粉的利用率,从而提高锅炉的经济效益。该煤粉分离器适用于各种煤粉细度和煤质,煤粉细度可调至4-6%。其技术特点主要可概述为:
(1)将粗粉分离器进口管加装二次携带导流器,改善了一次分离区的结构和气流形态,改善重力分离的效果,二次携带能力增加,分离路径增长,同时降低分离器的阻力。
(2)二次携带轴向型双挡板煤粉分离器具有较好的“防堵”功能。

  1. 由于分离器容积强度的增加,分离路径增长;
  2. 轴向型挡板与径向型挡板相比结构完全改变,杂物由于重力作用无法在挡板处停留,减少堵塞的机率;
  3. 加之轴向型挡板通流面积增加,杂物部分通过挡板被吹入炉膛,堵塞的可能性大大减少;
  4. 加大回粉管直径,增加流通及回粉能力;
  5. 分离器内椎体改为全封闭式内筒,不再出现短路及堵塞现象。

(3)内部无任何积分死角,彻底杜绝内锥堵粉的可能性。
(4)一次风管风粉分布均匀性提高。由于流场分布均匀,使得分离器后进入一次风管道风粉均匀性得到改善,设备阻力有所降低。
(5)具有较好的细度调节特性。煤粉细度调节范围大,轴向型挡板调节性能良好,调节特性呈线性,调节挡板开大时煤粉细度变大,反之则减小。可以根据不同的煤种调整煤粉细度,对于燃烧性能较差的煤,煤粉细度能有效的控制在所需的煤粉细度内,制粉系统出力不降低。
(6)在回粉口上安装外置锁气器,锁气严密、不串气、气流不短路,在锁气器上安装快开门,使锁气器内垃圾清理方便、安全。分离器的人孔门为快开门,开闭方便。
(7)提高机组运行的安全性和经济性,减少检修人员的工作强度。
3.2 轴向型双挡板煤粉分离器结构特点
轴向型双挡板煤粉分离器是适用于火力发电厂制粉系统中的直吹式双进双出钢球磨的锅炉设备,属于气固两相流中的分离装置。
轴向型双挡板煤粉分离器结构包括煤粉分配器、轴向可调节挡板(双级)、外圆柱体、内圆柱体、内锥体、外锥体、二次携带导流器、回粉桶及回粉锁气装置。煤粉分配器安装在外圆柱体上,外圆柱体与外锥体连接,在外圆柱体内设置内圆柱体,外锥体内设置内锥体;在外锥体下端连接回粉桶,回粉桶的回粉管连接回粉锁气装置,外圆柱体与内圆柱体间设置煤粉分离调节挡板。
煤粉分离轴向调节挡板置于分离器外锥体与内锥体间,由内轴座、轴套、内端轴、外端轴、外轴座、压盖、密封盖、螺帽及挡板组成。挡板前端设置有内轴座,内轴座内装有内端轴,内端轴上套有轴套;挡扳后端设置有外端轴,外端轴安装在外轴座内,外端轴端装有压盖及密封盖,并且用螺帽并紧。具有较好的细度调节功能、防堵功能
在煤粉分离轴向调节挡板附近设有快开人孔门、快装清理检查孔等。

3.3改造后效果:
轴向型双挡板煤粉分离器在正压直吹式双进双出制粉系统中能很好的实现煤粉细度的线性调整,制粉系统能适应各种煤质的变化,为燃烧系统提供可靠的,有利于锅炉燃烧的稳定性和经济性。
3.3.1、对原粗粉分离器改造后,煤粉细度得到有效控制及调节,根据不同的煤质,R90可以在5-25%之间可调,煤粉均匀性提高。可降低飞灰可燃物含量,相应可提高锅炉效率,经济效益显著,对电厂节能降耗及减排等大有益处。
3.3.2、二次携带轴向型双挡板煤粉分离器,具有良好的防堵塞功能,粗粉本体内杂物基本不会堵塞挡板,不需停磨经常清理,大大减轻设备的维护工作量,减少磨煤机被迫停机的次数。
3.3.3、在回粉口上安装锁气器,锁气严密、不串气,气流不短路,在锁气器上安装快开门,使锁气器内垃圾清理方便、安全。
3.3.4、二次携带轴向型双挡板煤粉分离器,通过重新设计计算,采用二次携带技术、轴向挡板调节装置,气流分布更为合理,制粉系统阻力有所降低,煤粉细度大幅度降低的情况下可制粉系统出力不受影响,制粉单耗变化不大甚至还略有下降(同种煤质情况下)。

 

"
上一页:缓冲锁气器
下一页:HJ-CB系列轴向III型粗粉分离器
    
Copyright @ 无锡市华锦电力设备修造有限公司 All reserved. 地 址:无锡市滨湖区雪浪方庙工业园区 电 话:0510-85187068 传 真:0510-85183818  邮 编:214125 Http://www.hjdlsb.com E-mail:sales@hjdlsb.com
苏ICP备05006662号-1无锡网络公司:君通科技