 |
|
| > Here is the contents of our home page navigation forum, to provide you with convenient browsing. Thank you! ... |
|
|
|
|
 |
| |
| HJ-DMC型脉冲袋式库顶除尘器 |
设备概况
HJ-DMC型脉冲袋式库顶除尘器适宜布置在各种粉粒料储存库的顶部,用于收集细小干燥粉尘。其工作原理是利用脉冲反吹的压缩空气,清除收尘布袋上沾附的粉尘,使布袋的过滤能力得到及时有效的再生。与机械振打、反吹风等除尘器相比具有:无机械损伤、理风力大、布袋使用寿命长、除尘效率高、长期运行稳定、整机外形美观、安装维修方便的特点。
技术参数
| 项目 |
DMC-12 |
DMC-24 |
DMC-36 |
DMC-48 |
DMC-60 |
DMC-72 |
DMC-84 |
DMC-96 |
DMC-108 |
DMC-120 |
| 过滤面积m2 |
9 |
18 |
27 |
36 |
45 |
54 |
63 |
72 |
81 |
90 |
| 滤袋数量 |
12 |
24 |
36 |
48 |
60 |
72 |
84 |
96 |
108 |
120 |
| 滤袋规格 |
φ120×2000 |
| 工作温度℃ |
<120℃(涤纶) |
| 设备压力pa |
1000-1500 |
| 除尘效率 |
99.5% |
| 入口含尘浓度g/m2 |
<15 |
| 过滤风速m/min |
0.5-4.0 |
| 处理风量m2/h |
270-2150 |
540-4300 |
810-6480 |
1080-8640 |
1350-10800 |
1620-12900 |
1890-15100 |
2160~17200 |
2430~19400 |
2700~21600 |
| 喷吹气压mpa |
0.5~0.7 |
|
|
|
|
|
|
|
|
|
| 脉冲电磁阀(个) |
2 |
4 |
6 |
8 |
10 |
12 |
14 |
16 |
18 |
20 |
| 脉冲宽度(s) |
0.1-0.2 |
| 脉冲周期(s) |
60-120 |
| 脉冲间隔(s) |
1~50 |
| 耗气量(m2/min) |
0.126~0.252 |
0.168~0.36 |
0,210~0.420 |
0.252~0.504 |
0.294~0.588 |
0,336~0.672 |
0.378~0.756 |
0.504~1.008 |
0.672~1.334 |
0.924~1.848 |
| 重量(kg) |
900 |
960 |
1000 |
1050 |
1360 |
2100 |
2510 |
2780 |
3500 |
4550 |
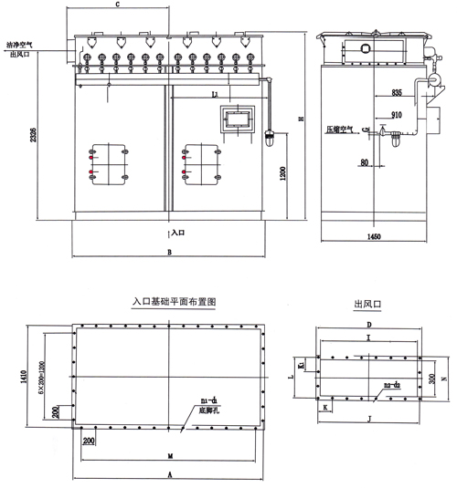
外形尺寸 |
| 项目 |
A |
B |
C |
D |
G |
H |
J |
L |
M |
N |
I |
L1 |
K |
K1 |
n1-d1 |
n-d |
| DMC-12 |
1410 |
1450 |
360 |
466 |
3/4” |
466 |
441 |
339 |
1200 |
366 |
400 |
420 |
113 |
113 |
14-φ18 |
16-φ12 |
| DMC-24 |
1410 |
1450 |
360 |
470 |
3/4” |
470 |
400 |
339 |
1200 |
370 |
400 |
620 |
110 |
110 |
24-φ18 |
14-φ11 |
| DMC-36 |
1360 |
1400 |
755 |
466 |
3/4” |
466 |
441 |
339 |
1200 |
366 |
400 |
800 |
147 |
147 |
28-φ18 |
12-φ10 |
| DMC-48 |
1760 |
1800 |
955 |
890 |
1” |
890 |
840 |
339 |
1200 |
370 |
800 |
1020 |
110 |
110 |
32-φ18 |
20-φ10 |
| DMC-60 |
2160 |
2250 |
1200 |
866 |
1” |
866 |
836 |
336 |
2000 |
366 |
800 |
1250 |
120 |
120 |
36-φ18 |
20-φ11 |
| DMC-72 |
2614 |
2650 |
1400 |
870 |
1” |
870 |
840 |
339 |
2400 |
370 |
800 |
1390 |
120 |
120 |
40-φ18 |
26-φ11 |
| DMC-84 |
3014 |
3050 |
1600 |
1270 |
1” |
1270 |
1240 |
339 |
2800 |
370 |
1200 |
1590 |
120 |
120 |
44-φ18 |
20-φ11 |
| DMC-96 |
3410 |
3450 |
1835 |
1270 |
1” |
1270 |
1240 |
339 |
3200 |
370 |
1200 |
1755 |
124 |
124 |
48-φ18 |
26-φ11 |
| DMC-108 |
3850 |
3900 |
2035 |
1450 |
1” |
1450 |
1400 |
339 |
3600 |
370 |
1360 |
2073 |
120 |
120 |
52-φ18 |
34-φ11 |
| DMC-120 |
4250 |
4300 |
2235 |
1450 |
1” |
1450 |
1400 |
336 |
4000 |
366 |
1360 |
2350 |
120 |
120 |
56-φ18 |
34-φ11 |
|
 |
| 上一页:HJ-XCH型箱式冲灰器 下一页:缓冲锁气器 |  |
|
|
|
|
|
|
 |